Freie Wohnungen, Stand Oktober 2025
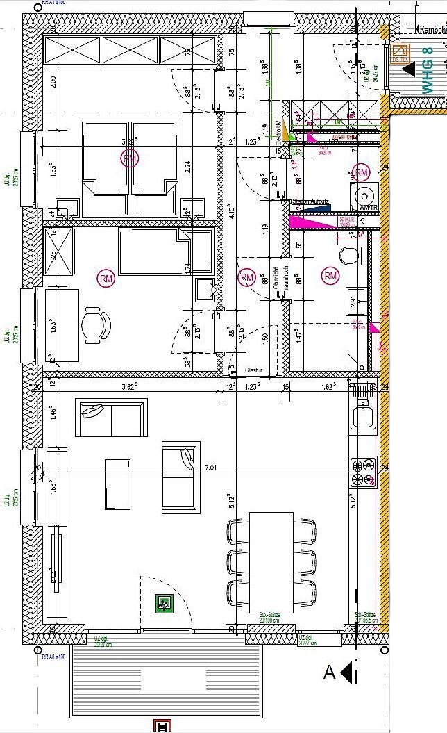
Bei uns wird eine Wohnung Nr. 8 im 1. Obergeschoss frei.
Die Vermietung der Wohnung erfordert einen Wohnberechtigungsschein. Sie muss mit mindestens 3 Personen belegt werden.
82,5 m2, 1 Wohnküche, 2 Zimmer, 1 Bad, Balkon, 1 Abstellkammer.
Die Genossenschaftsanteile, gemäß der Förderstufe, sind entsprechend der Wohnungsgröße zu erbringen. Bei Auszug werden diese in gleicher Höhe rückerstattet.
Grundriss Wohnung Nr. 8
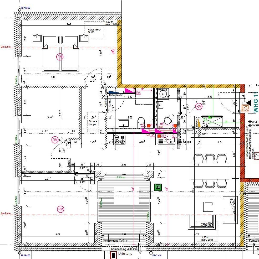
Und zum 1.1.2026 wird die Wohnung Nr. 11 im 2. Obergeschoss frei.
Die Wohnung soll an eine Familie mit mindestens einem Kind vermietet werden.
93,5 m2, 1 Wohnküche, 3 Zimmer, 1 Bad, 1 Gäste-WC, Dachloggia (Südseite), 1 Abstellkammer.
Die Genossenschaftsanteile sind entsprechend der Wohnungsgröße zu erbringen. Bei Auszug werden diese in gleicher Höhe rückerstattet.
Bei Interesse bitte um Kontaktaufnahme über https://froh2wo.de/kontakt/ oder per Mail an kontakt@froh2wo.de
Grundriss Wohnung Nr. 11
Aufnahmeprozess
Der Weg in unsere Gemeinschaft vom ersten Kontakt bis zum Einzug braucht etwas Zeit, zwischen 2 und 4 Monaten.
Zum einen nehmen wir uns die notwendige Zeit, um potentielle neue MitbewohnerInnen kennen zu lernen.
Zum anderen gilt es, eine Reihe formaler Schritte zu verfolgen, die einen für beide Seiten sicheren Prozess sichern.
Unser Aufnahmeprozess ist standardisiert und enthält u.a. folgende Schritte:
- Erstkontakt
- Wohnungsbesichtigung
- Interessenbekundung und Motivationsschreiben
- 2 Kennenlerntreffen mit möglichst vielen BewohnerInnen
- Gespräche über Genossenschaft und finanzielle Themen
- Externe Bonitätsprüfung (Finanzprüfung)
Finanzierung
| Nutzflächenbezogene Anteile [1] | Nutzungsentgelt (Miete) monatlich | Nebenkosten monatlich | Stellplatz monatlich | Mitgliedschaft Froh2Wo eG [2] | 2 Pflichtanteile [3] | Jährlicher Mitgliedsbeitrag Froh2Wo eG | |
|---|---|---|---|---|---|---|---|
| Frei finanzierte Wohnungen | 1100 €/ m2 | 9,27 €/ m2 | Nach individuellem Verbrauch | 80 €/ Auto | 1.500 €/ Mitglied | 500 €/ Mitglied | 50 €/ Mitglied |
| Wohnungen mit Wohnberechtigungsschein (WBS) 1 | 750 €/ m2 | 6,59 €/ m2 | Nach individuellem Verbrauch | 80 €/ Auto | 1.500 €/ Mitglied | 500 €/ Mitglied | 50 €/ Mitglied |
| Wohnungen mit Wohnberechtigungsschein (WBS) 2 | 1075 €/ m2 | 7,62 €/ m2 | Nach individuellem Verbrauch | 80 €/ Auto | 1.500 €/ Mitglied | 500 €/ Mitglied | 50 €/ Mitglied |
[1] Werden bei Auszug innerhalb von 2 Jahren unverzinst rückerstattet
[2] Einmalig, ohne Rückzahlung
[3] Einmalig, wird bei Auszug innerhalb von 2 Jahren unverzinst rückerstattet
Warteliste
Bei Interesse an einem Platz auf unserer Warteliste kontaktieren Sie uns gerne mit einer kurzen Beschreibung ihrer Motivation zum gemeinschaftlichen Zusammenleben, ihrer Lebenssituation und ihren Wünschen zur Wohnungsgröße/ Zahl der Schlafzimmer über das Kontaktformular.
Infos für Menschen mit Interesse an unserem Wohnprojekt
Sie sind dabei, eine Wohnungsgenossenschaft zu gründen, eine Gemeinschaft aufzubauen oder haben Interesse daran zu erfahren, wie wir unsere Gemeinschaft leben?
Gerne teilen wir unsere Erfahrungen. Sprechen Sie uns hier an.
Unterstützen
Sie möchten Ihr Kapital sinnvoll nutzen und uns gleichzeitig unterstützen?
Sprechen Sie uns an und werden Sie investierendes Mitglied.
Satzung
Die Satzung ist für alle Mitglider bindend und deren Inhalte sollten bekannt sein.
Sie können die Satzung hier als PDF-Datei herunterladen und auf Ihrem Gerät speichern:
Download




